- 联系我们
-
荆州市天骐重工机械有限公司联系人:陈经理销售部电话:8451262(不接听推销、销售电话)销售部QQ邮箱:1040475689(不接听推销、销售电话)手 机:13972111148 (不接听推销、销售电话)采购部QQ邮箱: 2917124016(采购部无电话)地 址:湖北省荆州市荆州区学堂洲,(晶葳考场南边300米,第一家工厂,乘51路公交至晶葳考场即到:手机导航.车载导航可到)邮 编:434100
-
800-5629-2配料机产品编号:4308 
800-5629-2配料机外型尺寸图

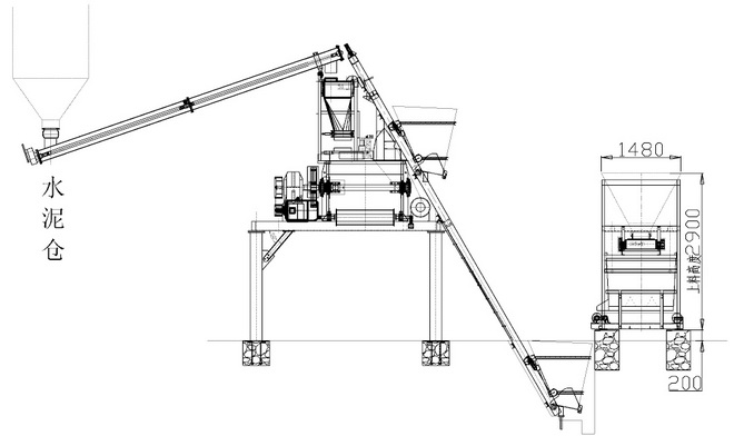
800-5629-2配料机配750搅拌机摆放示意图

800-5629-2配料机配750搅拌机占地面积
800-5629-2配料机基本技术参数
型号
800-5629-2
称量斗容积(L)
800
储料斗容积(L)
2000*2
生产效率
48
配料精度
±2%
最大称量值
1400
可配料总数
2
功率(KW)
3
水泥
袋装
适用装载机型号
装载机上料高度
20型
2.9米
外形尺寸
5600*1460*2900
工作尺寸
5600*1600*3100
运输尺寸
5600*1500*2900
适配搅拌机
750搅拌机
特点:
该配料机称量斗采用皮带送料方式,适合袋装水泥上料,若您使用的为散装水泥,建议选用1200-5626-2配料机,可以降低维修保养成本。同时也可降低整机功率。





