- 联系我们
-
荆州市天骐重工机械有限公司联系人:陈经理销售部电话:8451262(不接听推销、销售电话)销售部QQ邮箱:1040475689(不接听推销、销售电话)手 机:13972111148 (不接听推销、销售电话)采购部QQ邮箱: 2917124016(采购部无电话)地 址:湖北省荆州市荆州区学堂洲,(晶葳考场南边300米,第一家工厂,乘51路公交至晶葳考场即到:手机导航.车载导航可到)邮 编:434100
-
1200-5626-2配料机产品编号:4305 
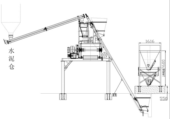
1200-5626-2配料机外形尺寸图

1200-5626-2配料机配750搅拌机摆放示意图

1200-5626-2配料机配750搅拌机占地面积
1200-5626-2配料机基本技术参数
型号
1200-5626-2
称量斗容积(L)
1200
储料斗容积(L)
3500*2
生产效率
56
配料精度
±2%
最大称量值
1600
可配料总数
2
功率(KW)
1.5
水泥
散装
适用装载机型号
装载机上料高度
20型
2.6米
外形尺寸
5600*1650*3000
工作尺寸
4420*1800*3550
运输尺寸
4420*1650*3000
适配搅拌机
750搅拌机
特点:
该配料机采用气动配料方式,降低整机功耗及维修保养成本。中间出料,能最小占地。
储料仓容积大,如果您配单台750搅拌机,两种物料,而且是散装水泥,建议选择此种配料机,这样您可以减低生产成本。





