- 联系我们
-
荆州市天骐重工机械有限公司联系人:陈经理销售部电话:8451262(不接听推销、销售电话)销售部QQ邮箱:1040475689(不接听推销、销售电话)手 机:13972111148 (不接听推销、销售电话)采购部QQ邮箱: 2917124016(采购部无电话)地 址:湖北省荆州市荆州区学堂洲,(晶葳考场南边300米,第一家工厂,乘51路公交至晶葳考场即到:手机导航.车载导航可到)邮 编:434100
-
1200-8721-3配料机产品编号:4304 
1200-8721-3配料机外形尺寸图

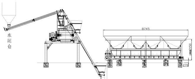
1200-8721-3配料机配750搅拌机摆放示意图

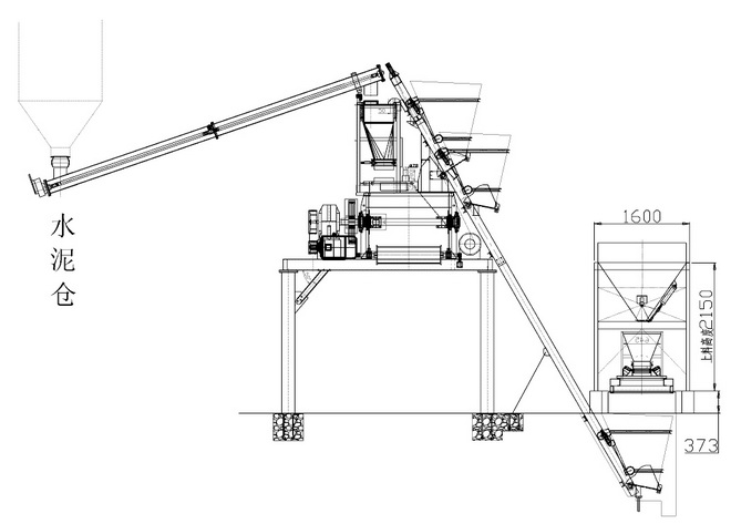
1200-8721-3配料机配750搅拌机摆放示意图-1

1200-8721-3配料机配750搅拌机第一种摆放占地面积

1200-8721-3配料机配750搅拌机第二种摆放占地面积

1200-8721-3配料机配750搅拌机第三种摆放占地面积
1200-8721-3配料机基本技术参数
型号
1200-8721-3
称量斗容积(L)
1200
储料斗容积(L)
3000*3
生产效率
56
配料精度
±2%
最大称量值
1600
可配料总数
3
功率(KW)
5.5
水泥
袋装
散装
适用装载机型号
装载机上料高度
30型
2.1米
外形尺寸
8750*1600*2480
工作尺寸
8750*1800*2800
运输尺寸
8750*1600*2500
适配搅拌机
750搅拌机
特点:
该配料机采用三仓储料,叠加称量,称量斗皮带送料,如图可有三种摆放方式,适用最多三种物料要求。





