- 联系我们
-
荆州市天骐重工机械有限公司联系人:陈经理销售部电话:8451262(不接听推销、销售电话)销售部QQ邮箱:1040475689(不接听推销、销售电话)手 机:13972111148 (不接听推销、销售电话)采购部QQ邮箱: 2917124016(采购部无电话)地 址:湖北省荆州市荆州区学堂洲,(晶葳考场南边300米,第一家工厂,乘51路公交至晶葳考场即到:手机导航.车载导航可到)邮 编:434100
-
1200S-12029-4配料机产品编号:4301 
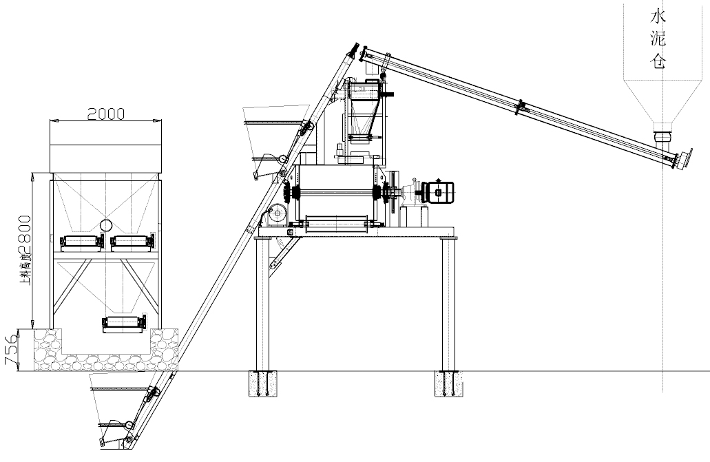
1200S-12029-4配料机外形尺寸图

1200S-12028-4配料机配750搅拌机摆放示意图

1200S-12029-4配料机配750搅拌机占地面积
1200S-12029-4配料机基本技术参数
型号
1200S-12029-4
称量斗容积(L)
1200
储料斗容积(L)
2500*4
生产效率
75
配料精度
±2%
最大称量值
2000
可配料总数
4
功率(KW)
12
水泥
袋装
散装
适用装载机型号
装载机上料高度
30型
2.9米
外形尺寸
12000*2000*3200
工作尺寸
12000*2200*4000
运输尺寸
6000*2100*2800
适配搅拌机
750搅拌机
特点:
该配料机采用两仓二合一结构,便于运输,同时多仓增大储料仓
容积。称量斗采用皮带双向送料,一台配料机可以配合两台搅拌机工作。大大提高配料机工作效率。





